Explore Our Luxurious Five Bedroom Duplex

Experience modern living with elegant architecture and thoughtful design.

3D Exterior Views

Overview: The Five Bedroom Fully Detached Duplex is a premium residence designed for families who desire maximum space, privacy, and elegance. With its spacious layout and private compound, it offers comfort and exclusivity.

3D View 1 3D View 2

Floor Plans

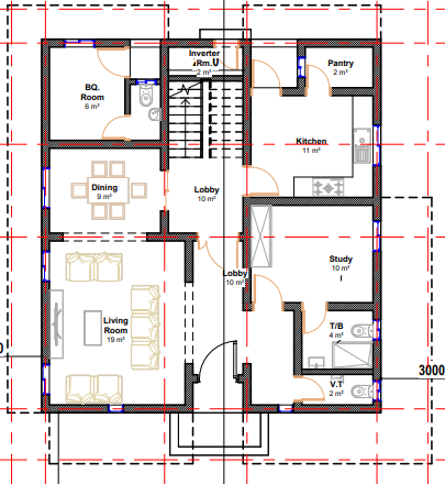
Ground Floor Plan

The ground floor is designed for convenience and Comfort, featuring:

  • Spacious living room with large windows
  • Dining area with open plan design
  • Fully fitted modern kitchen with pantry/store
  • Guest bedroom (en-suite)
  • Stairway access to upper floors
  • Visitor’s toilet
  • Parking space / outdoor patio
  • Ground Floor 3D Plan Ground Floor Drawing
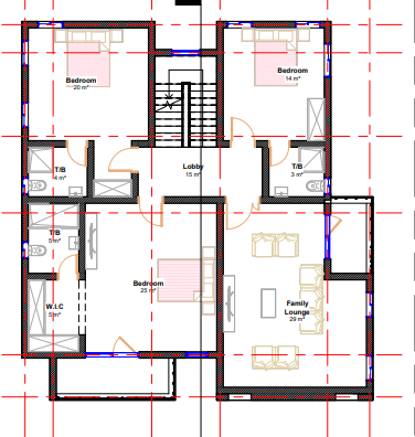
    First Floor Plan

    The first floor is a private sanctuary with luxurious features, including:

  • Family lounge / private living area
  • 2 en-suite bedrooms with wardrobes
  • Balcony with outdoor view
  • Walkway overlooking main living area
  • First Floor 3D Plan First Floor Drawing
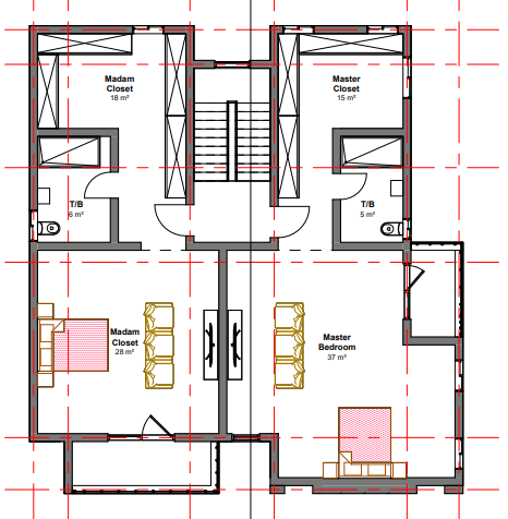
    Second Floor Plan

    The second floor crowns the home with elegance, offering a grand features including:

  • Master bedroom (en-suite with walk-in closet, jacuzzi & shower)
  • Additional en-suite bedroom
  • Private study/office space
  • Balcony/Terrace for relaxation
  • First Floor 3D Plan First Floor Drawing
    More About the Five bedroom Duplex

    ✔ Five spacious bedrooms, all ensuite
    ✔ Walk-in closets in master bedroom
    ✔ 2 living rooms (main lounge & family lounge)
    ✔ Large modern kitchen with store
    ✔ Private parking for multiple cars
    ✔ Balconies with scenic views
    ✔ Elegant exterior design that enhances curb appeal
    ✔ Private garden space