Explore Our Modern Three Bedroom Semi-Detached Duplex

Experience modern living with elegant architecture and thoughtful design.

3D Exterior Views

Our Three bedroom semi-detched duplex is a perfect blend of contemporary architecture and functional design, offering both elegance and practicality.

3D View 1 3D View 2

Floor Plans

Ground Floor Plan

The ground floor is designed for convenience and lifestyle, featuring:

  • Spacious living room with elegant finishing
  • Modern kitchen with high-quality fittings
  • Guest toilet for convenience
  • Dining area seamlessly connected to living spaces
  • Boys’ Quarters (BQ) for extra accommodation
  • Ground Floor 3D Plan Ground Floor Drawing
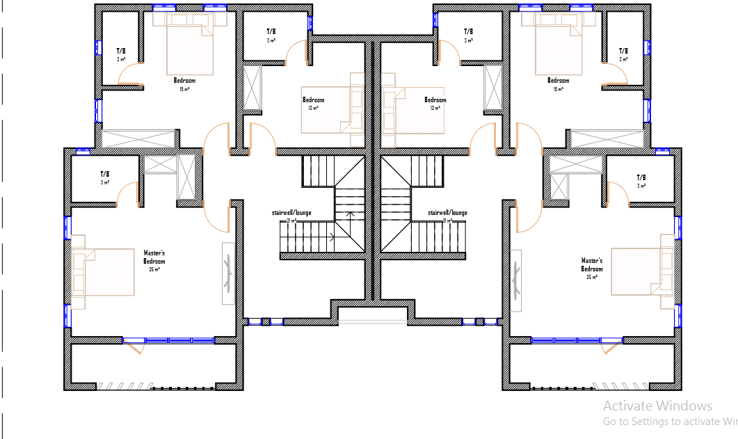
    First Floor Plan

    The first floor is a private sanctuary with luxurious features, including:

  • Master bedroom with ensuite bathroom and walk-in closet
  • Two additional bedrooms with ensuite bathrooms
  • Private family lounge for relaxation
  • Balcony with beautiful estate views
  • First Floor 3D Plan First Floor Drawing
    More About the ThreeBedroom Semi-Detached Duplex

    ✔ Total of 4 spacious bedrooms, including a well-designed BQ
    ✔ Modern bathrooms with premium fittings
    ✔ Spacious family lounge for relaxation and entertainment
    ✔ Expansive windows that allow natural lighting
    ✔ Elegant exterior design that enhances curb appeal